固封環保斷路器/下隔離接地開關
-
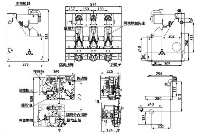
- 產品概述
- 公司自主研發生產的新型環保復合絕緣真空斷路器/下隔離接地開關,采用真空滅弧,結構設計緊湊,開關本體安裝于密封氣箱內,具有環境適應性強、相對空氣絕緣開關體積小、安裝方便、操作靈活、運行穩定等特點,可有效減少占地空間;同時,結構設計上考慮了滿足干燥環保氣體零表壓時絕緣性能要求,不需充SF6氣體加強絕緣,從而抑制了溫室氣體的排放。本產品技術水平高,工藝精湛,性能穩定,運行安全可靠。本產品通過了開斷和關合試驗(含E2級電壽命試驗)、短時耐受電流和峰值耐受電流試驗、高/低溫試驗、機械壽命(M2級) .容性電流開合試驗(C2級)、零表壓狀態下絕緣試驗、局放試驗、主回路1.1倍額定連續電流溫升試驗等標準要求的所有試驗。
-
型號及其含義
執行標準
GB/T 1984高壓交流斷路器
GB/T 1985高壓交流隔離開關和接地開關
DL/T 402高壓交流斷路器
DL/T 486高壓交流隔離開關和接地開關
使用環境條件注意事項
海拔高度不超過2000m,耐受地震能力(水平加速度) 2m/s2;
周圍空氣溫度不超過+50°C,且在24小時內測得最低氣溫不低于-40°C;
經常劇烈震動場所,存在明顯影響性能的水蒸氣、氣體、化學腐蝕沉淀、鹽霧、灰塵污垢的場所及爆炸、火災危險環境不適合使用。
技術參數
額定電壓 12kV 額定連續電流
630A 額定頻率 50Hz 額定短路開斷電流 20; 25 (kA)
額定短路關合電流(峰值) 50; 63 (kA) 容性電流開合試驗 C2級 額定操作順序 0-0.3s-CO-180s-CO 額定短時耐受電流 (有效值)及持續時間
主回路/接地開關 20/4; 25/4 (kA/s) 接地連接回路 17.4/2; 21.75/2 (kA/s) 額定峰值耐受電流 主回路/接地開關 50; 63 (kA) 接地連接回路 43.5; 54.8 (kA) 機械壽命 斷路器 10000/M2 (次)
隔離/接地開關 5000 (次) 電壽命 斷路器額定短路電流開斷次數
30/E2 (次) 接地短路關合能力
5/E2 (次) 絕緣試驗 主回路1min工頻耐壓:
相間、對地/斷口
42/48 (kV) 主回路雷電沖擊(12/50us)
耐壓:相間、對地/.斷口75/85 (kV) 輔助控制回路1min工頻耐壓 2 (kV) 輔助回路控制電壓(V) 24、48、110、220DC 110、220AC
停電接地、恢復送電操作程序為:
停電接地操作:
產品初始狀態:斷路器處于合閘位置,隔離開關處于合閘位置,接地開關處于分閘位置。
操作步驟:先操作斷路器至分閘位置→確認斷路器處于分閘位置后,操作隔離開關至分閘位置→通過電纜側高壓帶電顯示裝置確認回路失電后→操作接地開關至合閘位置,實現線路側接地→打開電纜室門。
恢復送電操作:
產品初始狀態:斷路器處于分閘位置,隔離開關處于分閘位置,接地開關處于合閘位置。
操作步驟:關好電纜室門→先操作接地開關至分閘位置→確認其處于分閘位置后,操作隔離開關至合閘位置→確認隔離開關處于合閘位置→操作斷路器合閘。 同類產品
-
上一篇:固封環保斷路器/上隔離接地開關
下一篇:固封環保PT隔離/接地開關
